Quadrilocale in vendita

Arco, Via Giuseppe Mazzini - Bolognano-Vignole
Informazioni in agenzia
4 locali 4 locali
120 Mq 120 Mq
2 bagni 2 bagni

Quadrilocale in vendita

Arco, Via Giuseppe Mazzini - Bolognano-Vignole

Descrizione annuncio

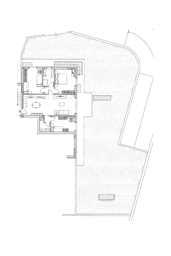
Nella splendida frazione di Bolognano, ad Arco, abbiamo il piacere di proporvi un quadrilocale di nuova costruzione, situato in un contesto esclusivo con poche unità abitative. Questa proprietà si trova in una delle aree più prestigiose della zona, dove la presenza costante del sole e la tranquillità circostante rendono questa soluzione abitativa un’opportunità unica.

L'appartamento si sviluppa interamente al piano terra e vanta tre lati liberi, orientati verso sud, est e nord. Un ampio giardino di proprietà esclusiva circonda l'abitazione, offrendo uno spazio all'aperto ideale per momenti di relax o per ospitare amici e familiari. All'interno, l'abitazione si distingue per una luminosa zona giorno open space, perfetta per creare un ambiente conviviale e accogliente. Le tre camere da letto, tutte di generose dimensioni, garantiscono comfort e privacy, mentre i due bagni offrono praticità e funzionalità.

Un elegante soppalco aggiunge ulteriore versatilità all'appartamento, potendo essere adibito a locale pluriuso secondo le vostre esigenze. Una comoda scala all'interno della proprietà conduce al seminterrato, dove ci accoglie un ampio locale di 35 mq, da utilizzare come spazio aggiuntivo e area di stoccaggio. A completare l'offerta, un grande garage che assicura comodità e sicurezza per il parcheggio.

Ogni dettaglio di questa proprietà è stato curato con attenzione, dal design ricercato all'alta efficienza energetica, tutto pensato per garantire un comfort abitativo di alto livello. Questa è una rara opportunità da non lasciarsi sfuggire. Non esitate a contattarci per ulteriori informazioni e dettagli: saremo lieti di accompagnarvi in questo percorso verso la vostra nuova casa. Immobile con obbligo di residenza primaria.

Mostra tutto

Nelle vicinanze

Trasporto pubblico Trasporto pubblico
Fermata di Viale Stazione
Fermata di Viale Stazione
140 m
Trasporto pubblico
210 m
Ricariche auto elettriche Ricariche auto elettriche
Supermercati Poli Arco | Neogy
2,5 Km
Scuole Scuole
Scuola Elementare di Bolognano
230 m
C.F.P. ENAIP
1,2 Km
Scuola primaria di Massone
1,6 Km
scuola primaria GardaScuola Arco
1,6 Km
Scuole
1,6 Km
Farmacia Farmacia
Farmacia Comunale
180 m
Farmacia Bettinazzi - R. & T. Pharma Snc
1,5 Km
Farmacia Redi
1,9 Km
Farmacia dott.ssa Venezian
2,9 Km
Ospedali Ospedali
Centro di Riabilitazione Villa San Pietro
1,1 Km
Regina
1,4 Km
Le Palme
1,8 Km
Pronto Soccorso Ospedale di Arco
2,4 Km
Ospedali
2,4 Km
Supermercati Supermercati
Supermercato Coop
170 m
Supermarket Coop
1,5 Km
Supermercato Orvea
1,5 Km
Supermercati
1,8 Km
Naturarco
2,1 Km
Negozi Negozi
Dolce Palacios di Luis Diego Palacios
220 m
Negozi
1,5 Km
Zamboni
1,6 Km
Banco delle Firme
1,8 Km
NKD
1,9 Km
Bar Bar
Bar Franca
230 m
Bar Primavera
320 m
Bar
890 m
Caffe Viennese
1,5 Km
Nardi Caffè
1,6 Km
Ristoranti Ristoranti
Pizzeria Ristorante "Da Marosi"
420 m
Ristorante "Al Fiume"
1,4 Km
Pizzeria Ristorante Antica Corte
1,4 Km
Peccato di Vino
1,5 Km
Sawadee
1,5 Km
Mostra tutto

Caratteristiche

Rif.:
61189465
Piano:
Terra con giardino di 2 con ascensore
Totale piani:
2
Box:
2
Posti auto:
1
Camere da letto:
3
Mostra tutto
Prezzo Prezzo
Informazioni in agenzia
Proponi il tuo prezzoProponi il tuo prezzo

Classe Energetica

A1
A1
A1
A1
A1
A1
A1
A1
A1
EP invernale del fabbricato:
EP estiva del fabbricato:
Anno di costruzione:
2026
Riscaldamento:
Centralizzato
Tipo impianto:
A pavimento
Tipo alimentazione:
Metano

Ti interessa visionare l'immobile?

Fissa un appuntamento  Fissa un appuntamento

Richiedi informazioni

Clicca su Leggi per aprire l'informativa
* Questi campi sono obbligatori
Affiliato
Arco Srl
Via Segantini, 118 38062 Arco (TN)

Il nostro staff


  • Pascal Arrigo
    Affiliato

  • Nicola Bignotti
    Responsabile

  • Deni Topcagic
    Collaboratore

  • Irene Baroncini
    Collaboratrice

  • Manuel Chincarini
    Collaboratore

  • Alex Minniti
    Collaboratore

  • Nicol Perini
    Coordinatrice
Via Segantini, 118 38062 Arco (TN)
Zona: Arco
Mostra su mappa
Orari: Lunedi al venerdi 09.00-12.00 15.00-19.00 Sabato 09.30-12.00 15.00-18.00
Affiliato
Arco Srl
Via Segantini, 118 38062 Arco (TN)

2026 Tecnocasa Franchising S.p.A. - P. IVA 08365160152 - Via Monte Bianco 60/A 20089 Rozzano (MI). Ogni agenzia ha un proprio titolare ed è autonoma. Privacy policy | Policy utilizzo | Cookie policy