Bilocale in vendita

Arco, Via Lungo Sarca - Linfano
Informazioni in agenzia
2 locali 2 locali
77 Mq 77 Mq
1 bagno 1 bagno

Bilocale in vendita

Arco, Via Lungo Sarca - Linfano

Descrizione annuncio

Torbole sul Garda – Il tuo rifugio esclusivo direttamente in spiaggia.

Un’occasione rara, pronta da vivere.
Immagina di svegliarti con la brezza del Lago di Garda, fare colazione al sole e poi essere già in spiaggia … tutto questo è realtà.

Caratteristiche che fanno la differenza:

Posizione privilegiata: direttamente sulla spiaggia di Torbole, in zona tranquilla e riservataAppartamento arredato al primo piano con ascensore – pronto da abitarePosto auto privato inclusoStallo a terra per la tua barca – perfetto per gli amanti del lagoTermoautonomo a metano – comfort e risparmioEsposizione su tre lati liberi (Nord, Est, Sud) – luce naturale tutto il giornoGiardino condominiale curato – un angolo verde sempre a disposizioneEsente dalla Legge Gilmozzi – libertà totale nella gestione dell’immobile, anche ad uso turistico.

Perché è speciale?

Questo appartamento non è solo una casa: è un investimento intelligente, un rifugio per le vacanze, o la tua nuova vita in uno dei luoghi più affascinanti del Trentino.
La combinazione di posizione, comfort e libertà gestionale concorrono a dare valore al tuo investimento nel tempo.

Non lasciartelo sfuggire!
Contatta subito l’agenzia per scoprire tutti i dettagli, prenotare una visita o ricevere altre foto e planimetrie.
Le opportunità come questa non restano sul mercato a lungo.

Mostra tutto

Nelle vicinanze

Trasporto pubblico Trasporto pubblico
Bivio Linfano
Bivio Linfano
150 m
Linfano
Linfano
250 m
Torbole
1,0 Km
Riva del Garda
2,6 Km
Riva del Garda
Riva del Garda
2,7 Km
Ricariche auto elettriche Ricariche auto elettriche
Eco Hotel Bonapace
580 m
Ingarda | Neogy
2,3 Km
Evway Stazione Autocorriere
2,7 Km
Hotel Villa Miravalle
2,8 Km
Scuole Scuole
SurfSegnana
250 m
Ex scuola elementare
1,8 Km
Scuola Elementare di Sant Alessandro
1,8 Km
Scuola primaria di Nago-Torbole
2,2 Km
Scuola Primaria di Nago-Torbole
2,2 Km
Farmacia Farmacia
Chinaglia
660 m
Parafarmacia E' Qui
1,5 Km
Farmacia Chinaglia
1,8 Km
Mutalipassi
2,4 Km
Farmacia
2,5 Km
Supermercati Supermercati
Lidl
280 m
Coop
600 m
Despar
640 m
COOP
1,6 Km
Margherita Conad
1,6 Km
Negozi Negozi
Shaka Surfsport
470 m
Replay Company
620 m
O'Neill
640 m
Torbole Vespa Rent
660 m
Quiksilver
680 m
Bar Bar
Bar
230 m
Bar Alpi
570 m
Aurora Lounge & Shisha Bar
570 m
Bar alla Sega
710 m
Caffè Monte Baldo
850 m
Ristoranti Ristoranti
Pizzeria Meeting
160 m
Villa Cian
260 m
Surfer's Grill
270 m
Pizzeria Nuova Garda
410 m
La Scarpetta
550 m
Mostra tutto

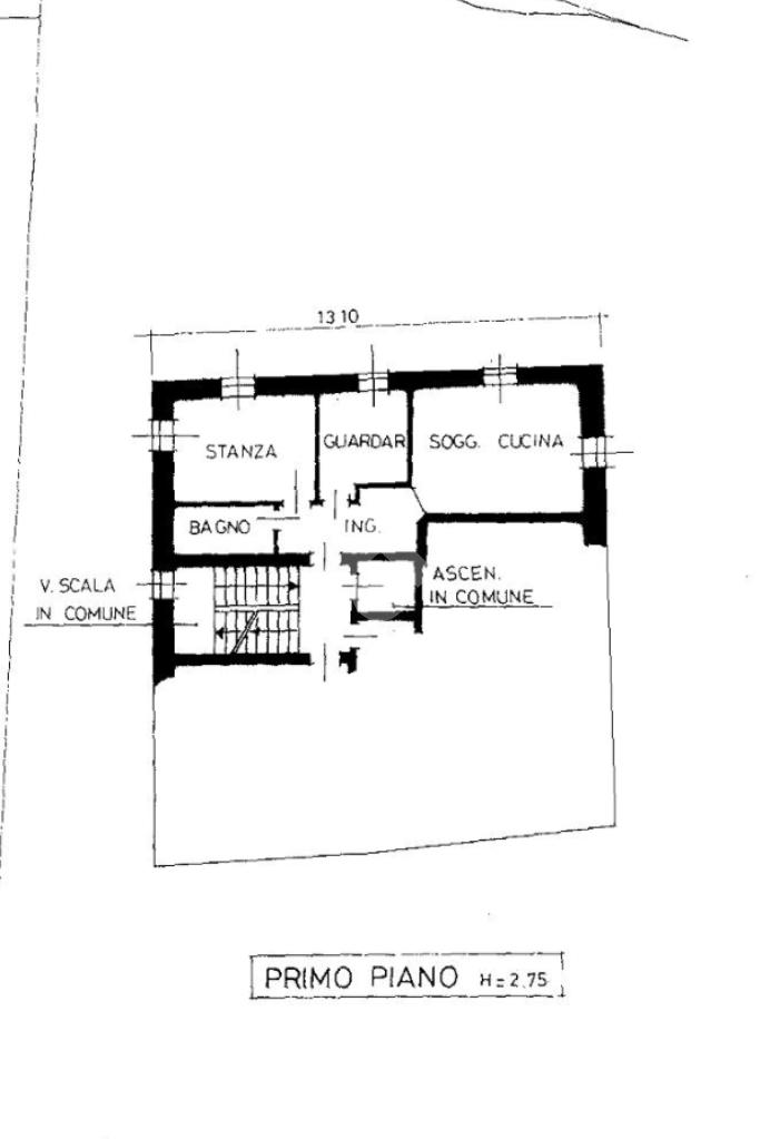
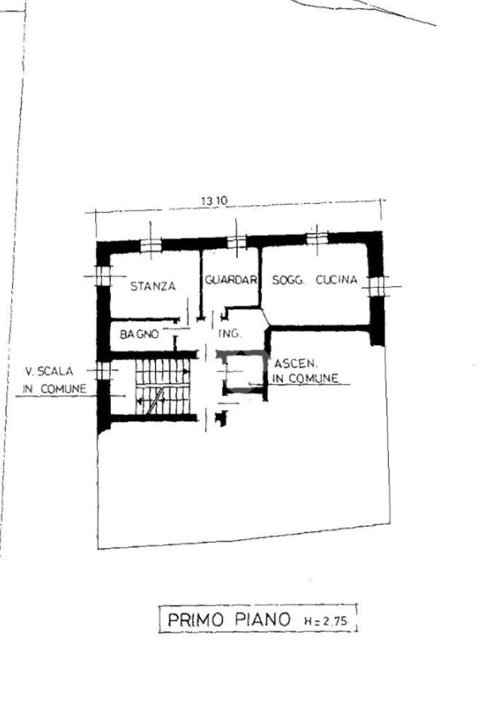
Caratteristiche

Rif.:
61127045
Piano:
1 di 3 con ascensore (Piano basso)
Posti auto:
1
Camere da letto:
1
Arredamento:
Completo
Condizionamento:
Assente
Mostra tutto
Prezzo Prezzo
Informazioni in agenzia
Spese annue Spese annue
€ 1.000
Proponi il tuo prezzoProponi il tuo prezzo

Classe Energetica

D
D
D
D
D
D
D
D
D
EP globale non rinnovabile:
159.54 kW h/m² anno
EP globale rinnovabile:
1.17 kW h/m² anno
EP invernale del fabbricato:
EP estiva del fabbricato:
Anno di costruzione:
1996
Riscaldamento:
Autonomo
Tipo impianto:
A radiatori
Tipo alimentazione:
Metano

Ti interessa visionare l'immobile?

Fissa un appuntamento  Fissa un appuntamento

Richiedi informazioni

Clicca su Leggi per aprire l'informativa
* Questi campi sono obbligatori
Affiliato
Arco Srl
Via Segantini, 118 38062 Arco (TN)

Il nostro staff


  • Pascal Arrigo
    Affiliato

  • Nicola Bignotti
    Responsabile

  • Deni Topcagic
    Collaboratore

  • Irene Baroncini
    Collaboratrice

  • Manuel Chincarini
    Collaboratore

  • Alex Minniti
    Collaboratore

  • Nicol Perini
    Coordinatrice
Via Segantini, 118 38062 Arco (TN)
Zona: Arco
Mostra su mappa
Orari: Lunedi al venerdi 09.00-12.00 15.00-19.00 Sabato 09.30-12.00 15.00-18.00
Affiliato
Arco Srl
Via Segantini, 118 38062 Arco (TN)

2025 Tecnocasa Franchising S.p.A. - P. IVA 08365160152 - Via Monte Bianco 60/A 20089 Rozzano (MI). Ogni agenzia ha un proprio titolare ed è autonoma. Privacy policy | Policy utilizzo | Cookie policy